Feiko Clockstraat 132, Oude Pekela
€ 325.000 k.k.
Omschrijving
Dit bedrijfspand met woongedeelte is gelegen op een centrale locatie in het hart van Oude Pekela en wordt volledig verhuurd aangeboden. Een uitstekende kans voor beleggers die op zoek zijn naar een object met direct rendement en stabiele verhuur. De huidige huurders zijn betrouwbaar en blijven het pand huren, wat zorgt voor continuïteit en zekerheid vanaf de overdracht.
Het betreft een cafetaria met een bijbehorend woongedeelte, waardoor er sprake is van een functionele combinatie van wonen en werken. De inventaris hoort niet bij het te koop aangeboden pand. Aan de achterzijde bevindt zich een ruime tuin met een recent geplaatste schuur, wat extra gebruiks- en opslagmogelijkheden biedt. Het pand is gelegen op een perceel van 276 m² en beschikt over een centrumbestemming, wat diverse mogelijkheden biedt voor de toekomst.
Met een bruto vloeroppervlak van 162 m², een verhuurbaar vloeroppervlak van circa 137,8 m² en een netto vloeroppervlak van 144 m² is het geheel efficiënt ingedeeld.
Indeling van het pand:
Begane grond: entree van de horecaruimte met keuken, doorgang naar het woongedeelte, bijkeuken, hal met achterentree, toilet en een hal met vaste trap naar de verdieping.
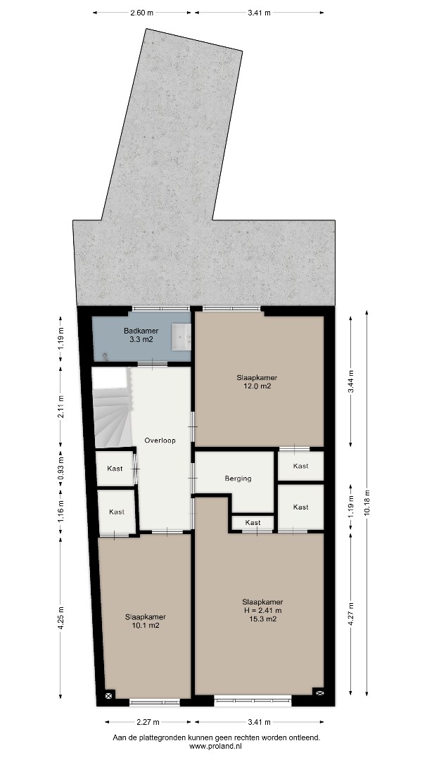
Eerste verdieping: overloop met vaste kastruimte, berging, badkamer en drie slaapkamers voorzien van vaste kasten.
Extra informatie:
• Ideaal beleggingsobject met direct rendement;
• Volledig verhuurd (huurders blijven aanwezig);
• Gelegen in het centrum van Oude Pekela;
• Perceeloppervlakte 276 m²;
• Energielabel C (geldig tot 09-09-2030);
• Scope 10 rapport aanwezig;
• Ruime tuin met recent geplaatste schuur;
• Bestemming: centrum;
• Ouderdomsclausule van toepassing;
• Mijnbouwschade is niet meer te claimen;
• Scope-10 rapport is aanwezig;
• Energielabel C.
Bent u op zoek naar een belegging met directe huuropbrengsten en een stabiele verhuursituatie? Neem dan gerust contact met ons op voor meer informatie.
WONINGAANBOD
Makelaardij Boekelo beschikt over een uitgebreid aanbod koop- en huurwoningen in Stadskanaal.
taxaties
Makelaardij Boekelo is een gecertificeerd taxateur. Bent u ook benieuwd of wij een taxatie voor u mogen uitvoeren ?
Hypotheken
Van annuïtaire en lineair tot de spaar- of aflossingsvrije hypotheek, wij zijn van alle vormen op de hoogte.
Verzekeringen
Naast ons ruime woningaanbod, geven wij ook advies op het gebied van verzekeringen en kunt u een verzekering afsluiten.
WONINGAANBOD
Wij hebben meer dan 40 koopwoningen beschikbaar. Ons woningaanbod wisselt voortdurend
taxaties
Laat uw woning door onze experts taxeren. Wij zijn Gecertificeerde Register Taxateurs
Hypotheken
Van annuïtaire en lineair tot de spaar- of aflossingsvrije hypotheek, wij zijn van alle vormen op de hoogte.
VERZEKERINGEN
Wij regelen ook uw verzekering. Uw verzekering vergelijken en aanvragen doet u hier.
